Fiind amplasată în satul Naipu din județul Giurgiu, pe marginea râului Câlniștea, râu legat de o serie de lacuri de agrement, Pensiunea Bila este un proiect pe care am dorit să îl integrăm ușor în cadrul natural pitoresc, fără să facă notă discordantă cu vecinătățile și peisajul din jur.
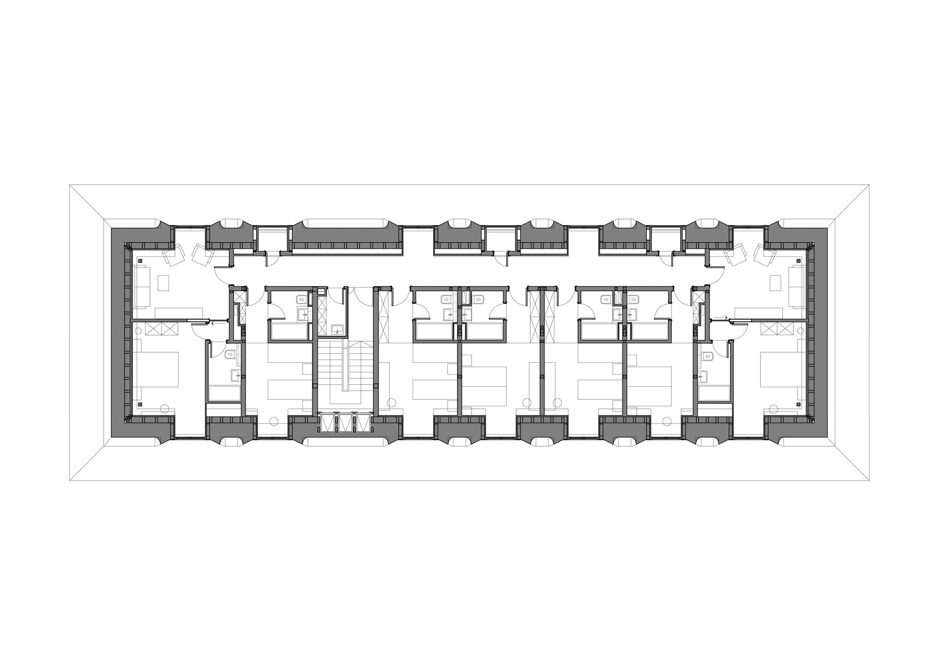
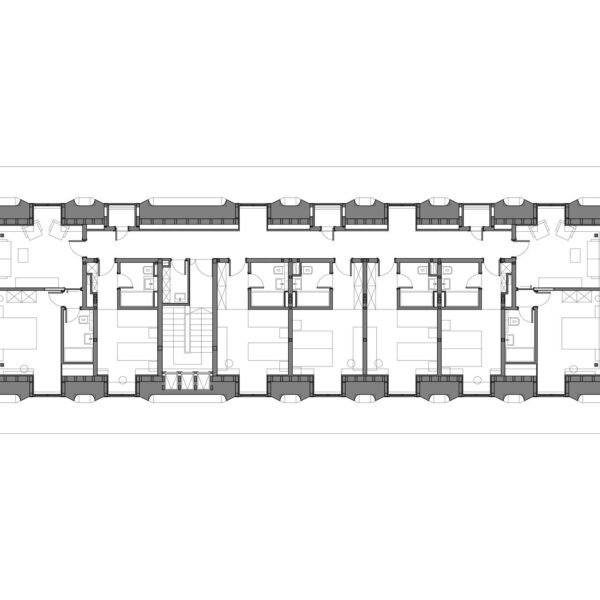
Din punct de vedere funcțional este o pensiune cu restaurant care are la parter și un mic magazin de desfacere pescăresc, funcțiuni care au sens în contextul în care lacurile din zonă sunt recunoscute ca lacuri de pescuit. La parter găsim recepția, micul magazin menționat anterior și restaurantul, cu funcțiunile anexe acestuia (bar, lounge, bucătărie, spații tehnice aferente), iar în legătură cu acesta este amplasată și terasa exterioară care oferă o perspectivă plăcută asupra râului. La etaj și mansardă sunt dispuse cele 10 camere si 3 apartamente tip „suite”.
Arhitectura clădirii împrumută elemente stilistice atât din arhitectura locală cât și din arhitectura caselor tradiționale situate în vecinătatea apelor. La parter remarcăm un registru de arcade masive dispuse pe un fundal alb care dă greutate compoziției fațadelor, amintind de soclurile de piatră de râu des întâlnite în arhitectura tradițională românească. La etaj regăsim terasele camerelor a căror dispunere ritmată amintește de prispa locuințelor tradiționale rurale din zonă. Lemnul, material de accent în acest registru contrastează cu tencuiala albă, element dominant la nivelul întregii volumetrii. Învelitoarea din stuf este o trimitere la arhitectura specifică Deltei Dunării ori a zonelor de luncă. Această soluție a fost aleasă și din motive de eficientă energetică, oferind o termoizolare foarte bună și are la bază un detaliu inovativ, stuful fiind montat peste un strat de panou termoizolant tip sandwich care are atât rol termic, cât și de protecție în caz de incendiu. Provocarea a constat în propunerea unui detaliu tehnic care să permită utilizarea stufului ca material al învelitorii, respectând totodată standardele de securitate la incendiu. Per ansamblu credem că este un proiect echilibrat din punct de vedere volumetric si estetic, care complementează cadrul în care se desfășoară și nu dăunează ecosistemului local.















